Some updates on our 3rd floor renovation: we've added wainscoting and window trim! Let me show you some pictures and tell you how we did it...
We measured the entire hallway, and brainstormed over the correct proportions...
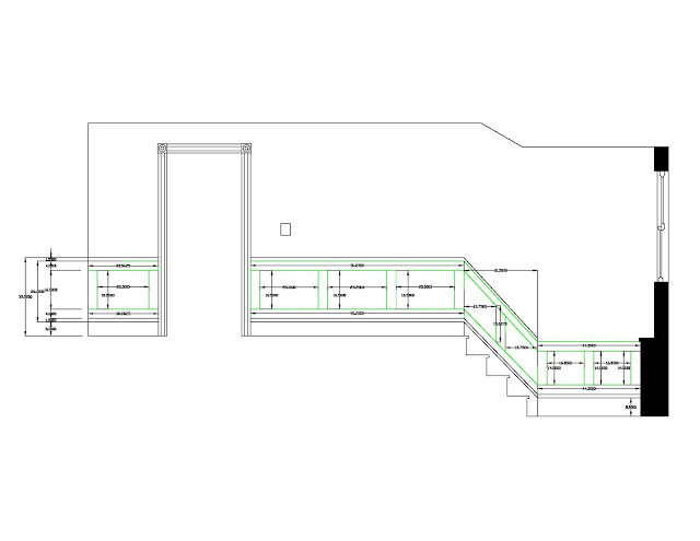
Then, I drew the proposed plan in AutoCAD.
image illustrating the wainscoting at the stair landing
Then, we gathered our materials.
Materials: first and foremost, you will need a miter saw and a table saw (we bought this and this). Other supplies include a trim nail gun (we used this one), construction adhesive, a level, tape measure, and a whole lot of THINKING. As you can imagine, this job required a lot of math and common sense. :) But honestly, if you're committed, anyone can DIY this type of project.
We ordered the majority of our poplar wood paneling from a local craftsman/friend. The rest of the trim came from the Home Depot.
Wood delivery! Lots of poplar 1" x 4" and 1" x 6" pieces.
Getting started: we marked where each stud was located.
We applied 3-ply sheeting against the newly installed drywall (they are sold in 4' x 8' sizes, so we had ours cut to size). This will be the foundation for the flat-panel wainscot (nail it into the studs and use construction adhesive to apply it against the wall). Then, we added a new baseboard on the upper landing (see where the new meets the old stained oak baseboard at the top of the stairs). In this photo, we had already added the lower horizontal panel above the baseboard.
The sheeting is up, as well as the new baseboards (we could not save the original baseboards in the this hallway). The original door trim has been re-applied. We had to cut a small opening in our newly drywalled ceiling to access the attic fan (I didn't want to do it here, and suggested every possible alternative, but it had to be done). The original attic opening can be seen here. We made the new access point smaller and centered on the middle door.
Vertical pieces are going up!
Belly shot. :) Being 7 months pregnant, I'm more of a "helper/gopher" on this job. I watch Dave work, hand him any necessary tools, bring him water, run to Home Depot for supplies, and discuss the design details ad nauseum. I think he really likes working with me.
All the paneling has been applied...
Progress shot of the stairway...
More progress-- the baseboard cap piece has been installed, and we've framed each inset panel with 3/4" trim. The trim on the inset dresses it up a bit and adds a lot of additional interest.
Close up picture of the inset trim, as it was being applied. Love that simple scallop.
Looking down towards the floor: once applied, the entire wall treatment projects about an inch from the wall. Now, we need to add a chair rail!
Will this work? We decided that we needed something a bit chunkier...
Perfect. This will be our chair rail combination.
And, here it is installed!
Close up detail of the new chair rail combination.
Dave, sanding everything smooth. :)
We still have a lot of prep work to do before we can prime and paint (we need to fill nail holes, caulk, etc) But, that's the progress so far! We are SO BEYOND THRILLED WITH THE RESULT. Like, can't even describe how happy.
Once the wainscoting was up, we needed to complete the window trim. The 3rd floor is the only floor of our home with NEW windows. The originals could not be saved up here (after years of neglect and serious rot), so we had them replaced with solid wood windows in the same style of the original.
We applied the new window trim this weekend, and I am LOVING the way it turned out.
this window looks over the backyard-- you can see a bit of the carriage house through the window.
That's the progress so far!
Next on the list:
repaint and hang the original trim that we so carefully saved (minus the shoe molding)install molding around the windows- paint molding around the windows
- paint and hang the new closet doors
- strip the paint from the original doors, sand, and stain to the natural wood
install wainscoting up the stairwell, onto the landing- paint newly installed wainscoting
- refinish the hardwood floors
- install shoe moulding
- final coat of "James White" on the walls
...


1.jpg)
2.jpg)











